本案以「歸屬感」作為空間設計的核心目標,
設計不透過符號或情緒訴求,而是從空間結構、使用行為與動線關係出發,
回應不同族群在共同場域中對安心、秩序與連結的需求。
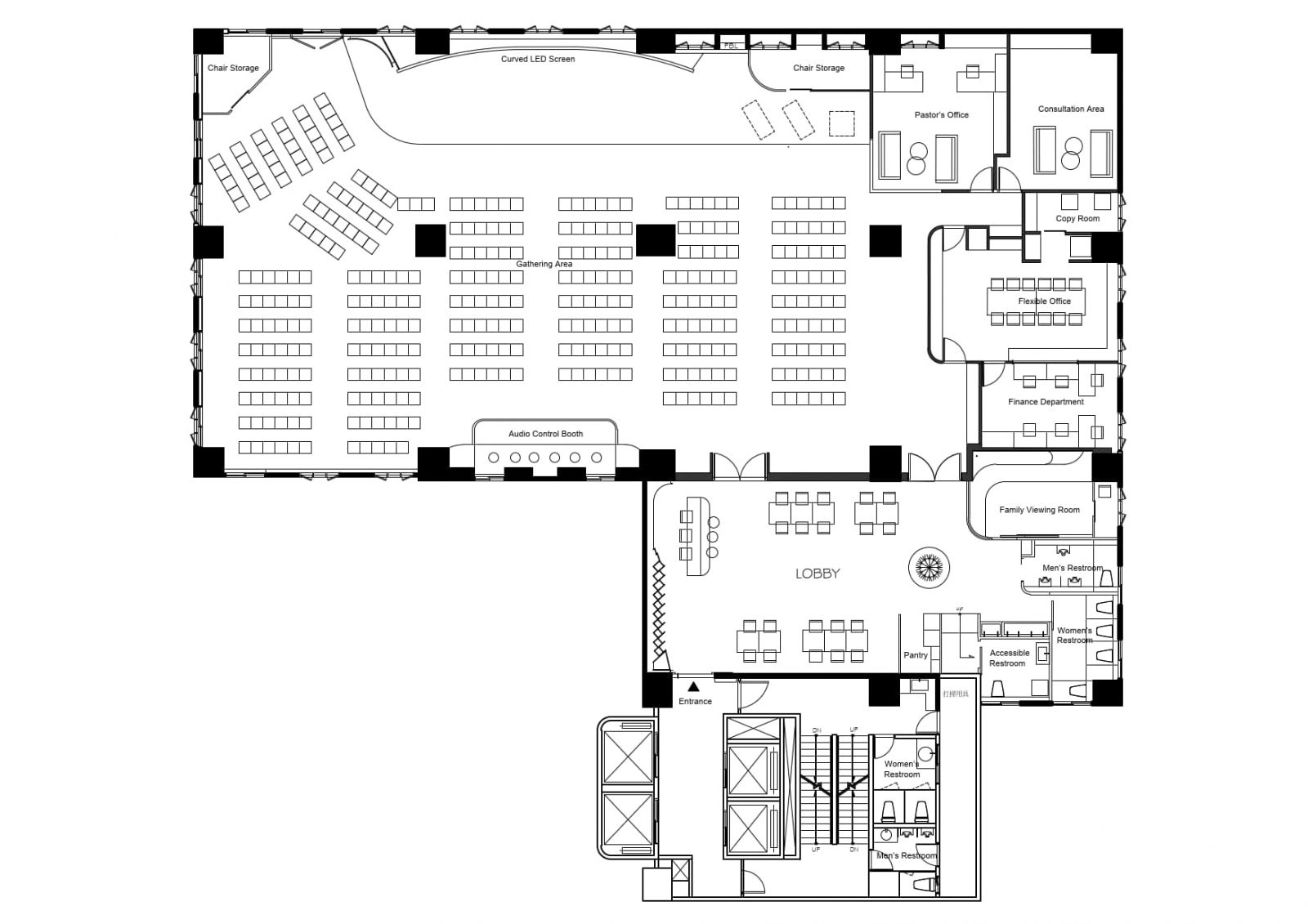
整體空間以清楚的分區邏輯進行組織,
將集會、親子、行政與支援機能分層安排,
在共享與獨立之間取得平衡,
使使用者能在不被干擾的狀態下自然互動。
主要集會空間採彈性配置思維,
透過可調整的座位系統與舞台關係,
支援不同形式的活動使用,
並整合視聽設備與顯示系統,
確保視線、聲學與操作動線的整體一致性。
親子相關空間則配置於相對安靜且可被照顧的位置,
在維持視覺連續的同時降低干擾,
回應多世代共用空間下的實際使用需求。
材質與空間語彙上,
設計採取克制而理性的表現方式,
以中性調性、比例控制與光線層次建立穩定的空間基礎,
讓場域能隨時間使用而累積質感,而非依賴表象裝飾。
本案所提供的並非被定義的使用模式,
而是一個可被長期使用、持續調整的空間結構,
讓歸屬感在日常行為與互動中自然生成。
.jpg)
.png)
.png)
.png)
.png)
.png)
.png)
.png)
.png)
.png)
.png)
.png)
.png)
.png)
.png)
.png)
.png)
.png)
.png)
.png)
.png)
.png)
.png)
.png)
.png)
.png)
.png)
.png)
.png)
.png)
.png)