本案位於社區一樓街邊店面,服務對象為樂齡長者之日間照顧使用。設計以「安心停留的日常場域」為核心,回應長者在空間中對安全感、熟悉感與被陪伴感的需求,同時讓照顧機能自然融入社區生活脈絡。
空間不以傳統機構形式呈現,而是回到「生活尺度」出發,透過溫潤材質、清楚動線與可預期的空間節奏,營造親切、穩定且不具壓迫感的環境。讓長者在進入空間的第一刻,即能感受到熟悉與放鬆,而非被管理或被指引。
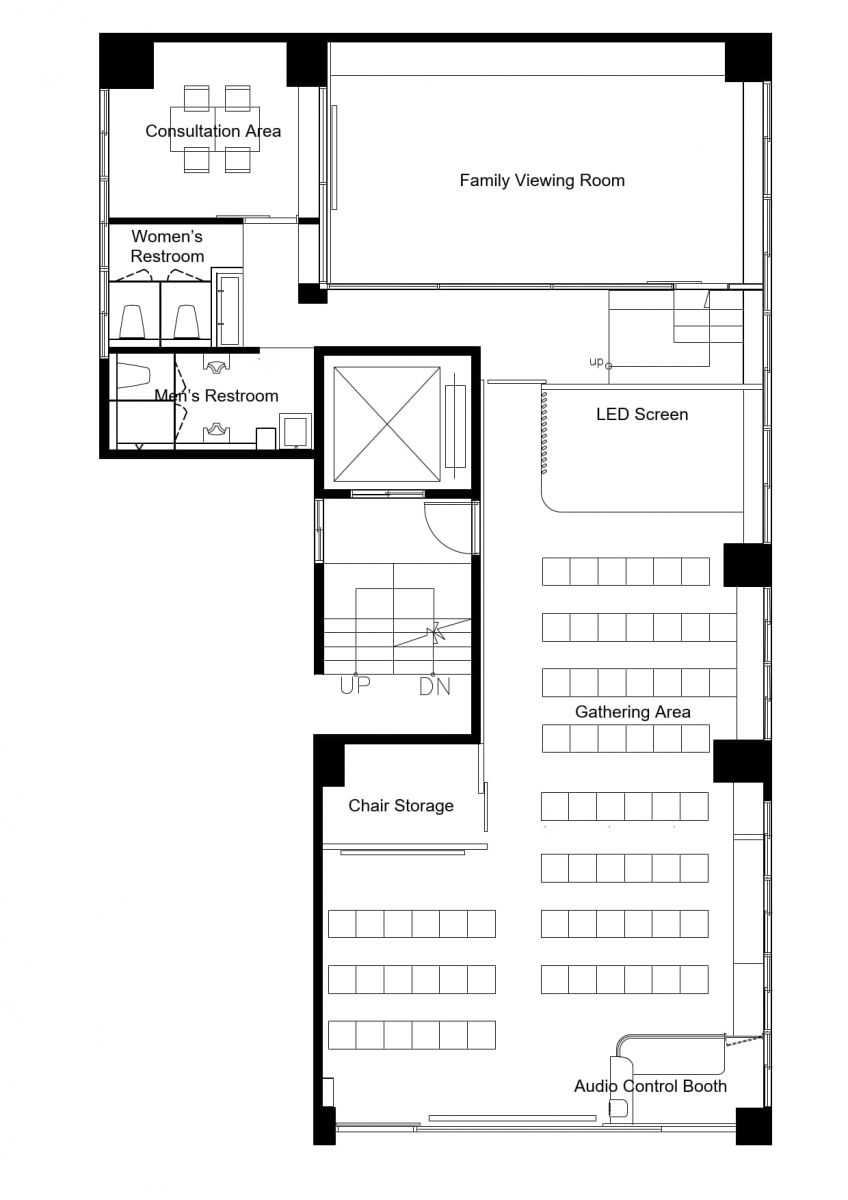
整體配置以單一主動線串聯各功能區,避免複雜轉折與多重選擇,降低使用時的認知負擔。
核心集會活動區位於空間主要位置,可因應共餐、課程、靜態休憩與團體活動等多元使用;舞台與顯示設備採用柔和高度與圓弧收邊,兼顧互動需求與安全性。
諮詢洽談空間與家屬觀看區相對獨立,提供溝通與陪伴所需的安定尺度,同時維持良好的視覺連結。
材質以木質、細顆粒石材與霧面牆體為主,減少反光與視覺刺激,建立溫和而穩定的空間表情。
色彩配置以低彩度中性色為基調,搭配少量對比色作為區域辨識與方向提示,使長者能直覺理解空間,而不產生干擾。
照明以均質、柔和為原則,避免眩光與陰影死角,並依活動需求配置重點光源。
細節上整合防滑地坪、清楚標示、無障礙廁所與輔具通行尺度,將安全性隱性地融入設計之中,使空間在使用上自然、順暢而不被刻意感知。
作為一樓臨街空間,立面設計在開放與隱私之間取得平衡,對外傳達溫暖、有活動感的日常樣貌,對內維持照顧空間所需的安定與專注。
此空間不只是照顧服務的場域,更是社區中一處能被看見、被記得、願意靠近的生活節點。
.jpg)
.png)
.png)
.png)
.png)
.png)
.png)
.png)
.png)
.png)
.png)
.png)